Login
How it works
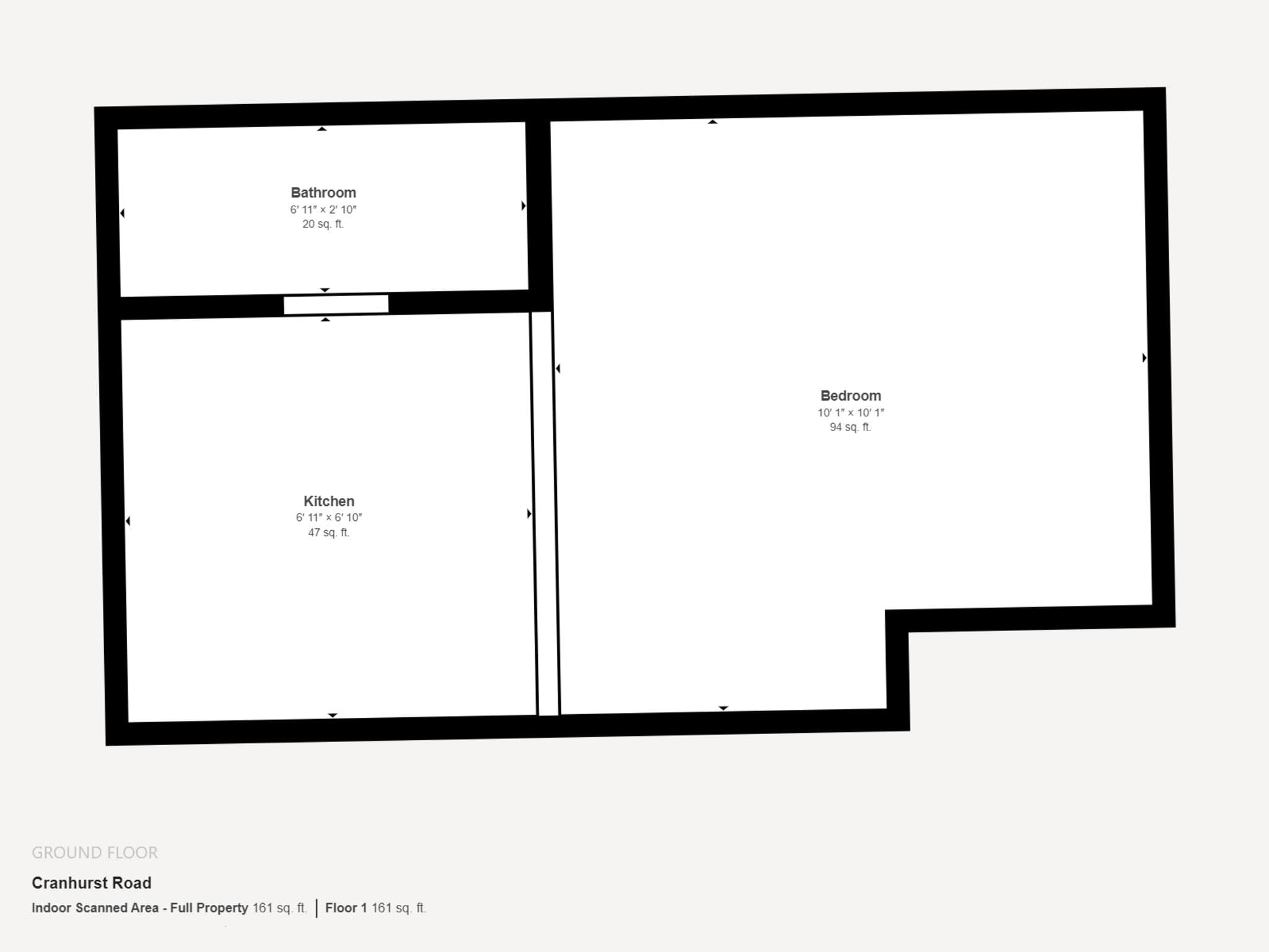
Cranhurst Road
Bedroom
Kitchen
Bathroom
Floor Plan