Login
How it works
Shipbuilding Way
Living Room
Kitchen
Bedroom
Terrace
Bathroom
Building
Dining Area
Hallway
Other
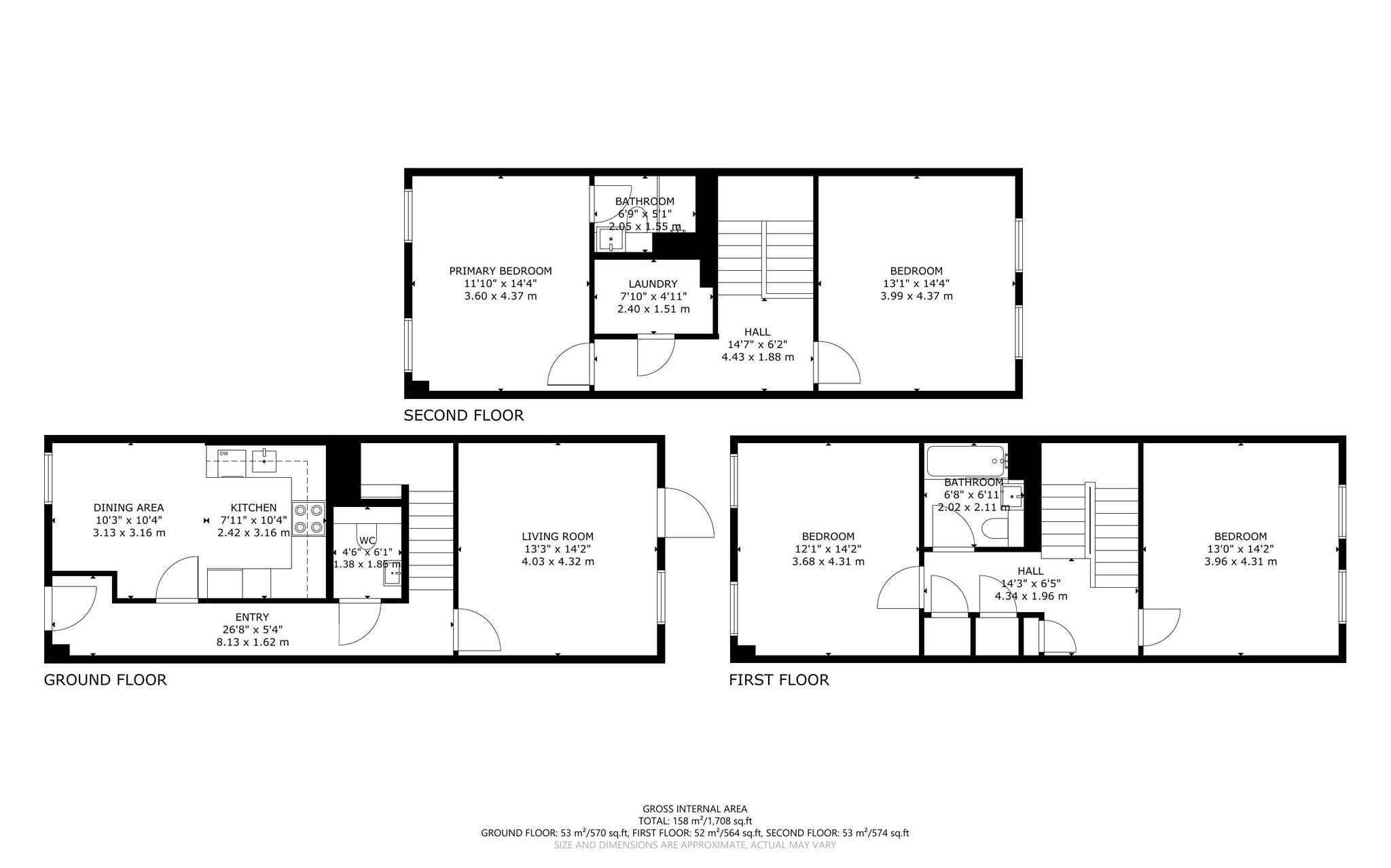
Floor Plan